mixed-use housing
macarthur
Park
The task was to design and propose a brand new commercial mix-use high rise building with circulation or program connecting to the metro station below. The address is 650 South Alvarado Street, Los Angeles, CA. It is highlighted by red rectangle . The corner of South Alvarado Street and Wilshire Blvd across from Mac Arthur Park, next to Westlake / MacArthur Park metro station. The area of the site is 16,081 sq ft. or 0.36 acres of land since 1 acre = 43,560 sq ft.
The site is located on Wilshire Boulevard, midway between the Miracle Mile to the west and the Central Business District to the east. It is a gateway to the Downtown and Center City West areas. Its visual prominence is emphasized by its location adjacent to MacArthur Park. The station site is located at the geographic center of a predominantly Central and South American district extending along Alvarado Street, from the Echo Park community to the north of Hollywood Freeway to the Pico-Union community to the south. The site is located at the intersection of Wilshire Boulevard and Alvarado Street, both designated as major highways and surface transit routes. The station is planned to be a transfer point for bus and subway passengers.
650 South Alvarado Street, Los Angeles, CA
NORTH ELEVATION
WEST ELEVATION
SOUTH ELEVATION
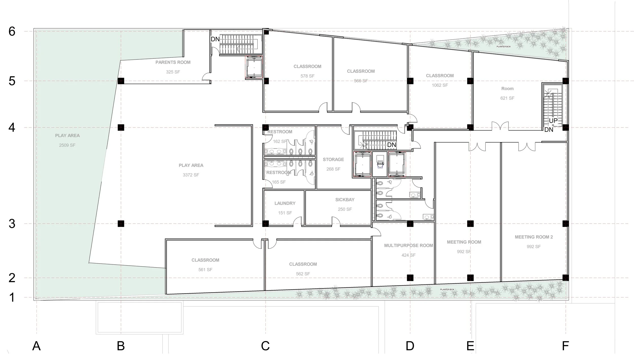
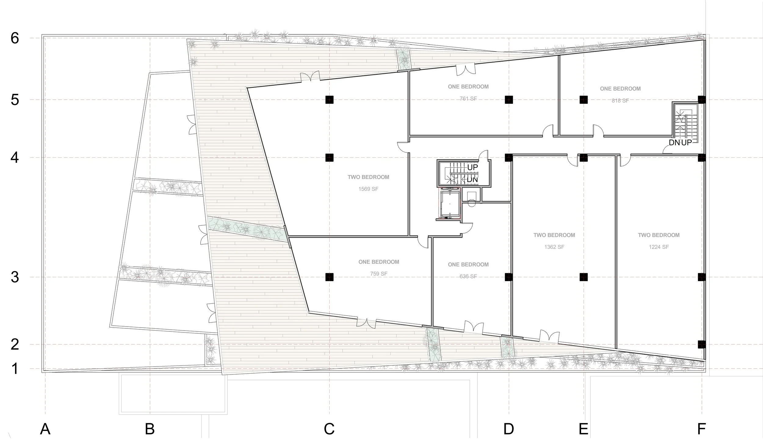
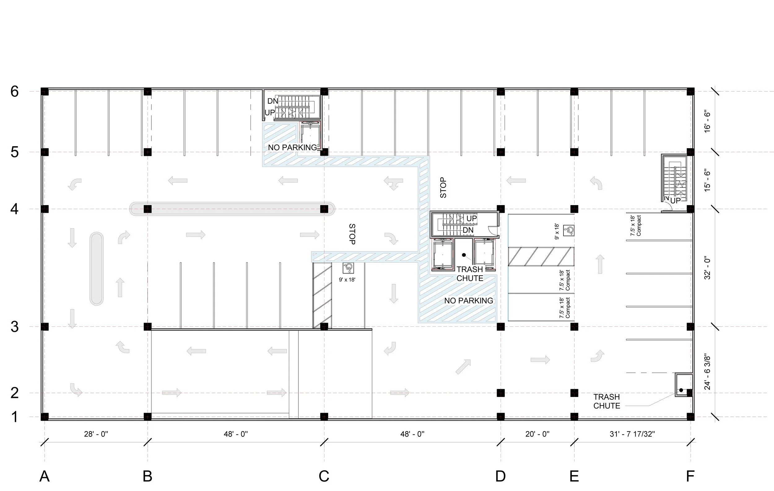
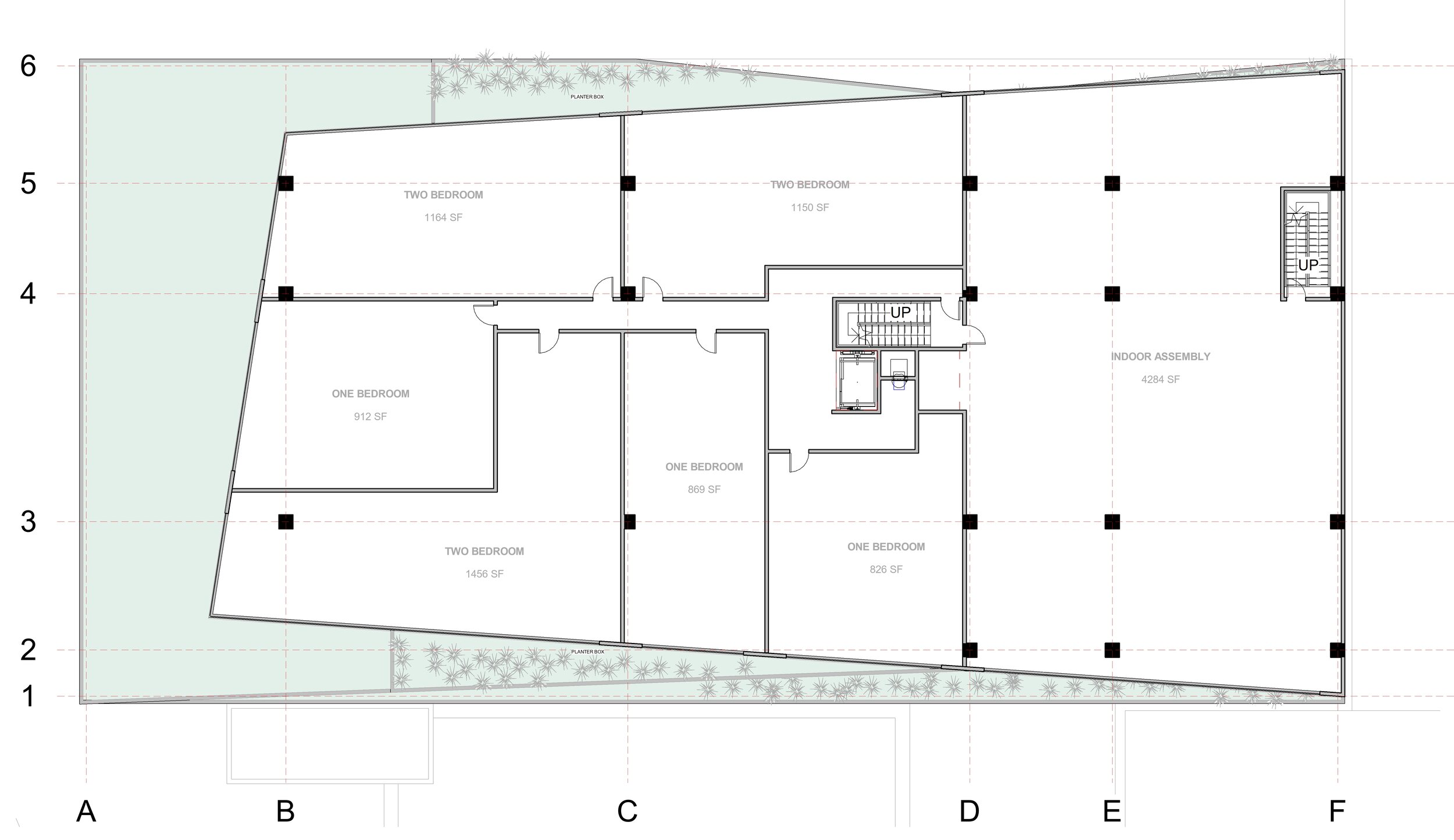
GROUND LEVEL
FIRST FLOOR
THIRD FLOOR
SECOND FLOOR
FIFTH FLOOR
FOURTH FLOOR
ROOF
SIXTH FLOOR
PARKING LEVEL 1
program diagram
structural diagram
ACCESS FROM METRO TO NEIGHBORHOOD COMMUNITY CENTER
ACCESS FROM PARKING LEVELS TO NEIGHBORHOOD COMMUNITY CENTER
ACCESS FROM METRO TO CHILD DAYCARE CENTER
ACCESS FROM PARKING LEVELS TO APARTMENTS
ACCESS FROM PARKING LEVELS TO CHILD DAYCARE CENTER
ACCESS FROM METRO TO APARTMENTS