1683+West+Ave%2C+Miami+Beach%2C+FL+33139+for+web.jpg

Retail Mixed-Use Project

Providing an alternative to the glut of high-end condo towers in Miami Beach typically hermetic, single-use structures sealed off from any relation to context or climate - the design for building 82% intensifies urban, programmatic, and spatial permeability. Exploiting the desirability of outdoor space in South Florida, the designs for the project amplify the possibilities of regional architectural strategies - balconies, terraces, atria, courtyards, and breezeways - by recombining them in unexpected ways to maximize the connections between interior and exterior space. Specifically, the design opportunistically manipulates the fact that only eighty- two percent of the available zoning volume for the site could be filled with built volume according to the floor area ratio (FAR) limits. Rather than locate this extra volume as a private interior courtyard, the extra volume is located around the public exterior, producing an undulating elevation with depth and a greater variety of interior views. In a sense, Le Corbusier’s Domino diagram is eaten away by the free plan and free facade.

 

1683 WEST AVE, MIAMI BEACH , FL 33139

Conceptual Diagram

1.The maximum FAR, with standard ceiling heights, filled 82% of the maximum building volume. Rather than placing the extra volume in an interior courtyard, the 18% is moved to the public face.

2.The extra volume forms a series of vertical cuts in the facade, choreographed to increase light to and views from the building.

3.Miami code allows a 5’ zone around the building’s perimeter. The slabs of each floor plate extend to this legal limit, producing a continuous exterior terrace. Undulations in the glazing envelope generate variation in dimension, forming a series of outdoor rooms, while the vertical courts provide property divisions between units.

WATCH THE PRESENTATION

 
 
EXPLODED.jpg

EXPLODED DIAGRAM

PROGRAM.jpg

PROGRAM DIAGRAM

STRUCTURAL.jpg

STRUCTURAL DIAGRAM

 
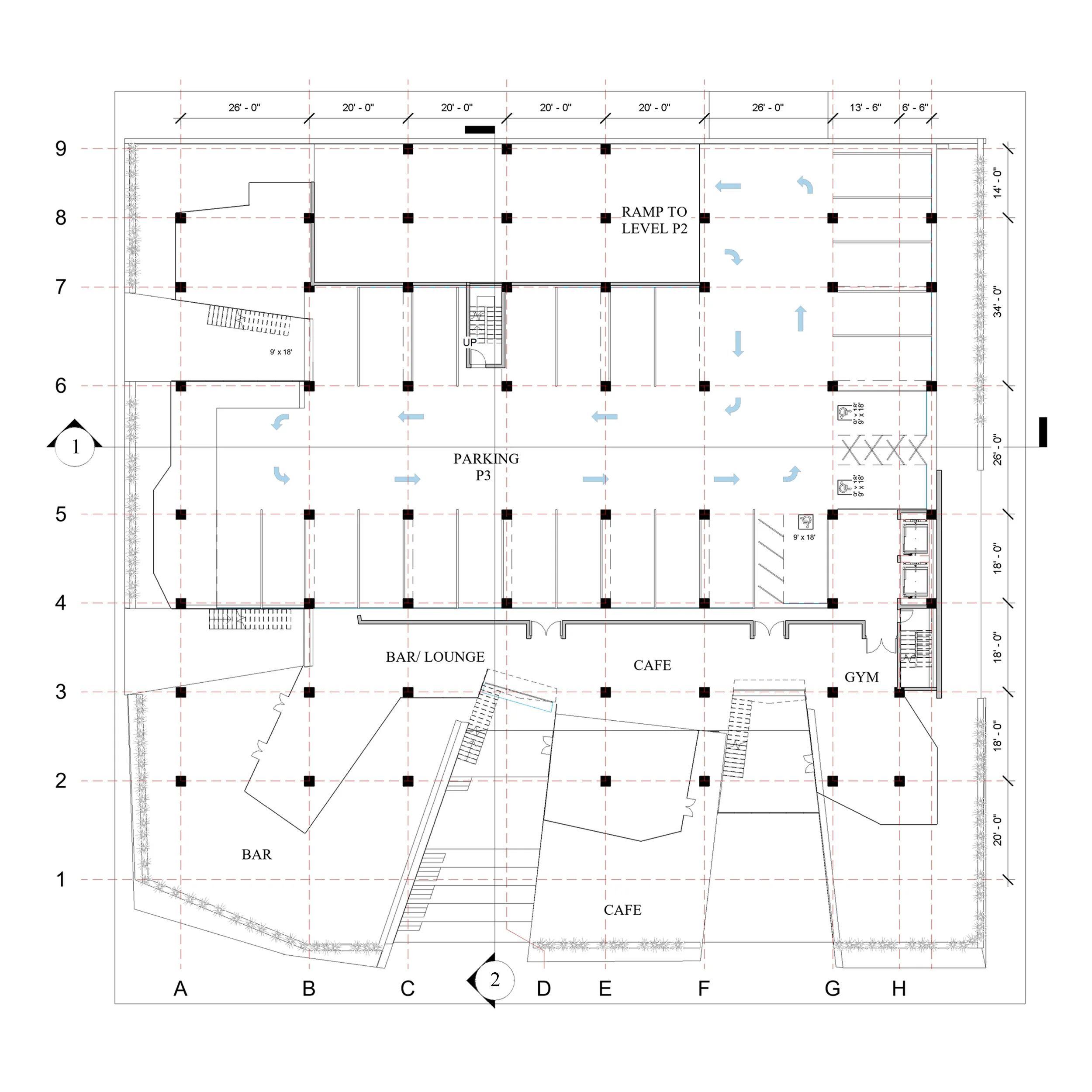
rendered circulation.jpg

CIRCULATION DIAGRAM

Stairs located within each court provide circulation from the lofts to the gardens below. Near the major street corner, an over-scaled urban stair folds down to connect the plinth to the street to the elevated landscape and residential units.

 
rendered 3d section.jpg

3D SECTION

Perimeter courtyards carve inward from the building edge, producing multi-level atria that establish property divisions among balconies, define living and working zones within units, and create visual connections between residential volume, the plinth. And the street. Variable translucencies in the window wall provide privacy and limit visual access between units.

Previous
Previous

The Senior Mixed -Use Housing

Next
Next

Mixed-Use Little Tokyo