google plan better.jpg

Mixed-use Project

Senior housing

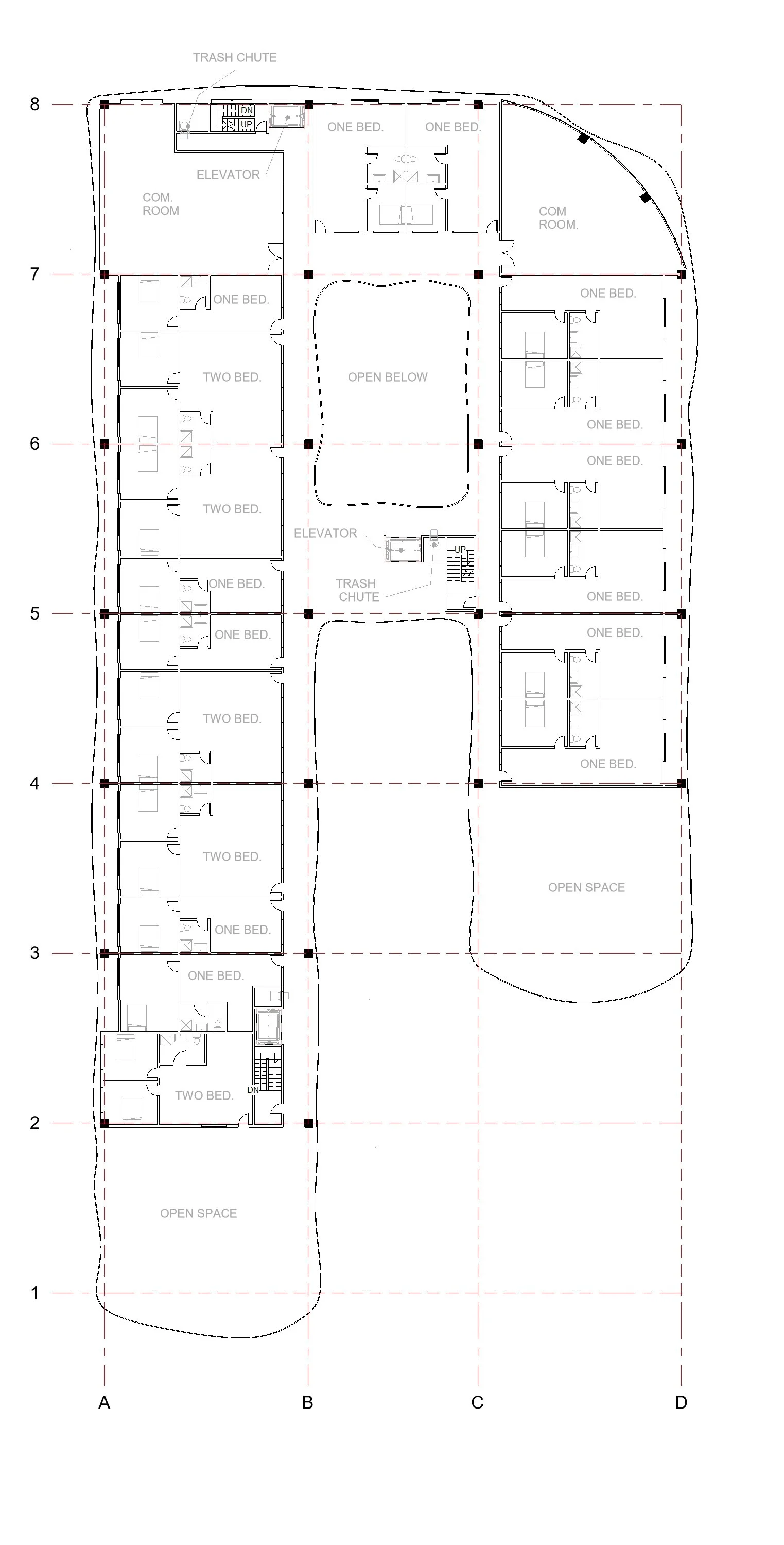
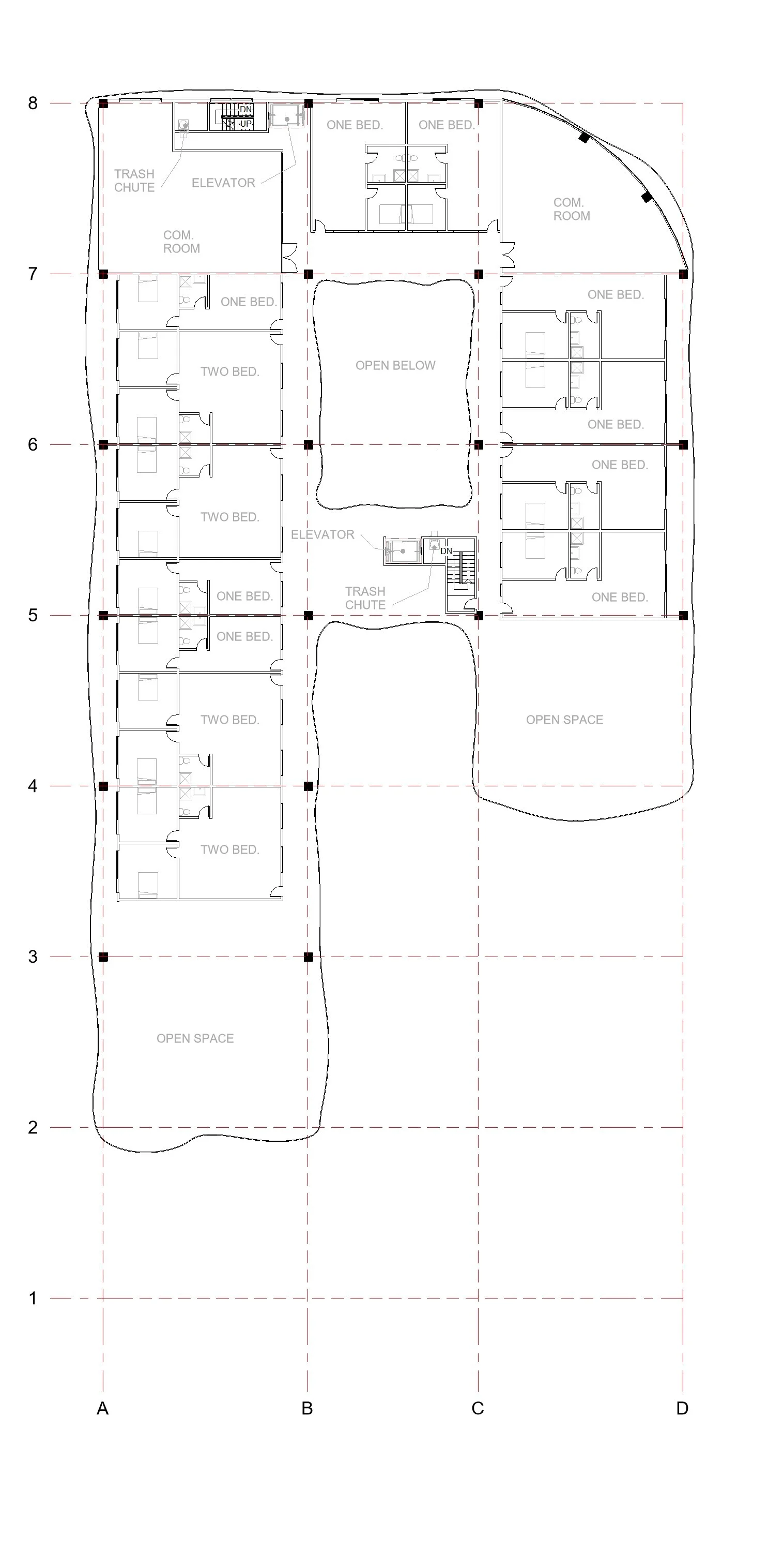
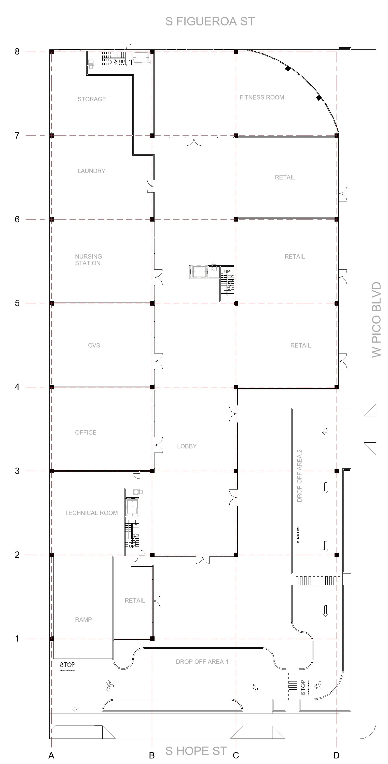
The task was to design a brand-new, 75-foot-tall, mixed-use midrise residential building for senior housing. The project site is located at 520 Pico Blvd, Los Angeles, CA, on the corner of Pico Blvd and South Flower Street, one block away from the Los Angeles Convention Center and near the Pico Metro Blue Line station. The site area is 46,269 sq. ft., or approximately 1.06 acres (since 1 acre = 43,560 sq. ft.).

The project represents a thoughtful housing type that responds to local lifestyles and the unique concerns of the greater metropolitan Los Angeles area. The dwelling spaces emphasize human scale, compositional coherence, and contextual compatibility. This project demonstrates that medium-density housing can be closely integrated with urban issues derived from site contours, neighborhood amenities, building orientation, prevailing movement patterns, and a desire for natural light, ventilation, and accessibility.

 

 520 Pico Blvd, Los Angeles, CA.

WATCH THE PRESENTATION

Conceptual Diagram

The concept creates visual connections between the residential volume and the street, It also provides privacy and limits visual access between units, maximizes connections between interior and exterior spaces.

 
vertical for web.jpg

Circulation Diagram

The entry lobby has two elevators with connections to shared facilities and connected to the street with full security screening. There are  2 offices for administration and manager with a visual connection to the entry lobby and a counter opening to general circulation.

parking for web.jpg

Parking Circulation diagram

1 parking spaces for each living units = 53 spaces. 10 accessible parking spaces for senior housing. 2 accessible parking space for retail space. Total Parking 200 parking spaces including accessible spaces. 90 degrees parking 9’-0” width by 18’-0” length.

 
PROGRAMM DIARAMM FOR WEB.jpg

PROGRAM DIAGRAM

STRUCTURAL DIAGRAM FOR WEB.jpg

STRUCTURAL DIAGRAM

Floor Plans

The Physical Model

Previous
Previous

Cognac Distillery

Next
Next

Retail Mixed-Use