google++web.jpg

mixed-use retail

little tokyo

The task was to design and propose a brand-new commercial mixed-use building featuring circulation and programmatic connections to Weller Court, located across 2nd Street. The project site is situated at 282 East 2nd Street, Los Angeles, CA, at the corner of East 2nd Street and San Pedro Street, in the Little Tokyo district of downtown Los Angeles. The total site area is 98,684 sq. ft., or approximately 2.3 acres (since 1 acre = 43,560 sq. ft.).

Little Tokyo is one of the smallest districts in Downtown Los Angeles, yet it is rich in history and activity within just a few compact blocks. The neighborhood boundaries extend from Temple Street to the north, Fourth Street to the south, Alameda Street to the east, and Main Street to the west. The historic core lies along First Street, between San Pedro Street and Central Avenue, where 13 of Little Tokyo’s original buildings still remain.

Established in the 1880s, Little Tokyo has endured and evolved through significant historical events — from the Japanese American internment during World War II to the urban redevelopment of the 1970s, which led to the loss of many historic structures. Despite these challenges, the neighborhood has remained a vibrant cultural hub. The open-air Japanese Village Plaza and Weller Court serve as the area’s busiest commercial centers, offering a mix of retail, dining, and hospitality.

Cultural landmarks include the Japanese American National Museum, which bridges past and present through its exhibits, the Japanese American Cultural and Community Center, the Geffen Contemporary at MOCA, and several innovative performance theaters that contribute to the district’s dynamic cultural identity.

 

282 East 2nd Street, Los Angeles

 

WATCH THE PRESENTATION

CONCEPTUAL DIAGRAM

On the first image you see how the word TOKYO looks like in Japanese (kanji alphabet). The shape of letters transformed into a building volume.

The top view of the buildings sometimes symbolizes their own functional, spiritual or strategic purpose.

It symbolizes the Little Tokyo area in DTLA as Los Angeles as multicultural, multinational city and we have a variety of ethnic groups

EXISTINGMercantile Occupancy uses intended for the display and sale of the merchandise involves stocks of goods, wares, or merchandise incidental to such purpose and accessible to the public.

EXISTING

Mercantile Occupancy uses intended for the display and sale of the merchandise involves stocks of goods, wares, or merchandise incidental to such purpose and accessible to the public.

 

Neighborhood diagrams

 
PROPOSED

PROPOSED

WEST AND SOUTH ELEVATIONS

EXISTINGAssembly uses intended for participation in or viewing outdoor activities. Outdoor space and outdoor circulation spaces within the project are unlimited.

EXISTING

Assembly uses intended for participation in or viewing outdoor activities. Outdoor space and outdoor circulation spaces within the project are unlimited.

open space diagrams

 
PROPOSED

PROPOSED

NORTH AND EAST ELEVATIONS

EXISTING

EXISTING

Street Section diagrams

 
PROPOSED

PROPOSED

SECTIONS 1-1 AND 2-2

During the design process by visualizing it I felt like the orientation is really complicated because we have a lot of access to the mall and to the bridge level which connected to Weller’s court. By comparing with other existing malls I concluded that it has been done intentionally for the purpose to make visitors spend more time there. All this together reminded me of a forest, especially when you are lost in the forest. That inspired me to design the facades in a shape similar to tree structure even the canopies bases have a tree structure. In my view we learn from nature and nature is the best architect. I've tried to initiate nature in my project.

 
VERTICAL CIRCULATION DIAGRAM

VERTICAL CIRCULATION DIAGRAM

STRUCTURAL DIAGRAM

STRUCTURAL DIAGRAM

 
 
 
 
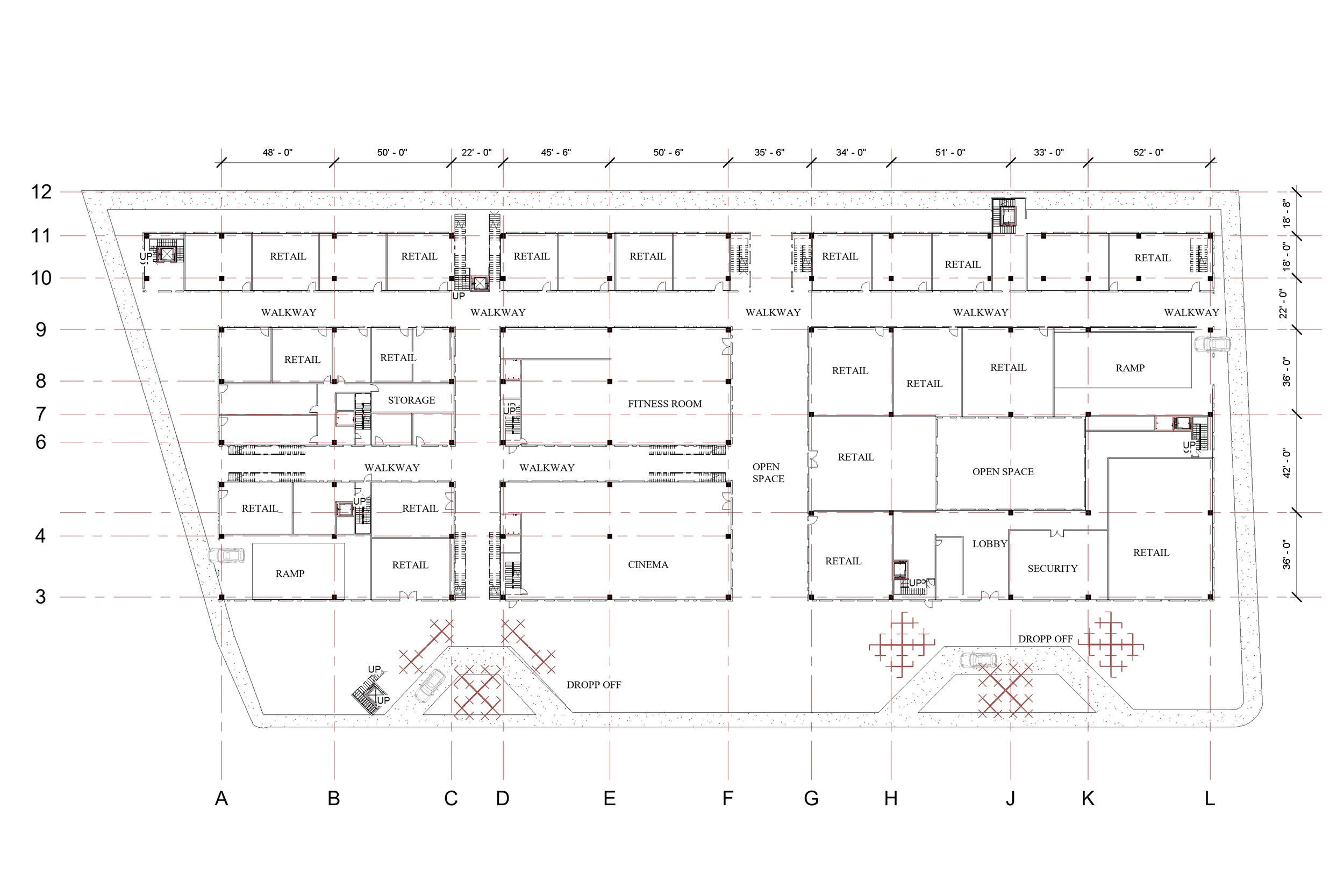
PROGRAM DIAGRAMProposed Architectural Program consists of 4 major Parts – Restaurants and food courts, outdoor performance area, professional office spaces, and retail stores and sales rooms.

PROGRAM DIAGRAM

Proposed Architectural Program consists of 4 major Parts – Restaurants and food courts, outdoor performance area, professional office spaces, and retail stores and sales rooms.

 

SECTIONS 3-3 AND 4-4

EXISTINGThe main reason for locating the building this way is the pedestrian flow. So that it becomes just one circle on the pedestrian flow chain.

EXISTING

The main reason for locating the building this way is the pedestrian flow. So that it becomes just one circle on the pedestrian flow chain.

PEDESTRIAN ACCESS diagrams

 
PROPOSED

PROPOSED

EXISTINGBuilding has two accesses to the parking 1 from Los Angeles street second from San Pedro street. The parking is designed in a way that when you get inside you have 2 options 2 vehicular circulations one for deliveries and storage. Another fr…

EXISTING

Building has two accesses to the parking 1 from Los Angeles street second from San Pedro street. The parking is designed in a way that when you get inside you have 2 options 2 vehicular circulations one for deliveries and storage. Another from visitors and office workers.

VEHICULAR CIRCULATION ACCESS DIAGRAM

 
PROPOSED

PROPOSED

Previous
Previous

Retail Mixed-Use

Next
Next

Mixed-Use Housing